شرکت مهندسی آراد بهینه انرژی
تهیه نقشه های ازبیلت در صنعت و ساختمان
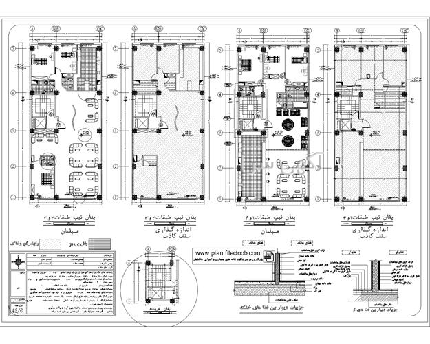
نقشه ازبیلت ساختمان شامل
- ازبیلت نقشه سازه،
- ازبیلت نقشه معماری
- ازبیلت نقشه تاسیسات مکانیکی
- ازبیلت تاسیسات برقی
نقشه ازبیلت در صنعت شامل ازبیلت سیستم لوله کشی و پایپینگ ، جانمایی تجهیزات، تاسیسات برقی و مکانیکی و ...
جهت مشاوره و عقد قرارداد با شماره تلفن های زیر تماس بگیرید:




آگهی های ساختمان خدمات ساختمانی در شهر اصفهانآگهی های خدمات ساختمانی ساختمان در شهر اصفهانBuilt In Gas Hob قیمت
Built In Gas Hob قیمت گاز پنج شعله
فرم ج چارچوب تهیه طرح آموزشی
Built In Gas Hob Home Appliances قیمت
نقشه ساخت جرثقیل سقفی